Ваш город:
Кострома
Кострома
Ярославль
+7 (4942) 64-11-11
Квартиры в новостройках
Готовая недвижимость
О ГРУППЕ КФК
О компании
Вакансии
Технология
Видео
Декларации
Правовые ресурсы
Ипотека
Этапы строительства
Декларации
Новости и акции
Контакты
Избранное (0)
Кострома
Ярославль
Кострома
Кострома
Ярославль
Кострома
Ярославль
+7 (4942) 64-11-11
+7 (4942) 64-11-11
Режим работы
ПН-ПТ
09:00 - 20:00
СБ
10:00 - 16:00
ВС
Выходной
Избранное (0)
Квартиры в новостройках
Готовая недвижимость
Услуги
Этапы строительства
Декларации
Новости и акции
Контакты
Кострома
Ярославль
Все типы недвижимости
Квартира
Коттедж
Коммерческая недвижимость
Таунхаус
Гараж
помещение
Земельный участок
Дом
Все жилые комплексы
«Дом на Воскресенском»
45/28
Галичский проезд
Галичский проезд
Дом 32 "Б" ЖК Романовский (Лесная 11)
ЖК "Венеция-2"
ЖК "Европейский"
ЖК "ЧЕМПИОН" (Паново)
Заволжский
Заволжский район
Заволжский район
Заволжской
заволжье
Заволсжкий
Кадыйский
квартал "Озерный" ЖК "Венеция"
Ключевка в ЖК Венеция
Кострома
Костромская область
Костромской
Костромской район
Коттеджный поселок "Малиновка"
Коттеджный посёлок «Малиновка»
Красносельский
Ленина
Ленинский
Ленинский район
мкр Новый город
мкр Новый город
Некрасовский
Нерехтский
Первомайский
Прикубанский
Свердловский
Судиславский
ул. Ленина, д. 131
ул. Ленина, д. 131
ул. Маршала Новикова, д. 25
ул. Нижняя Дебря д. 68
ул. Соловьиная, д.15
Фабричный
Фабричный район
центральная
Центральный
Центральный район
Центрпльный
Шарьинский
Юбилейный район
найдено
235
найдено
235
Развернуть поиск
Назад
Группа компаний «КФК»
Каталог
Кострома
ЖК "Европейский"
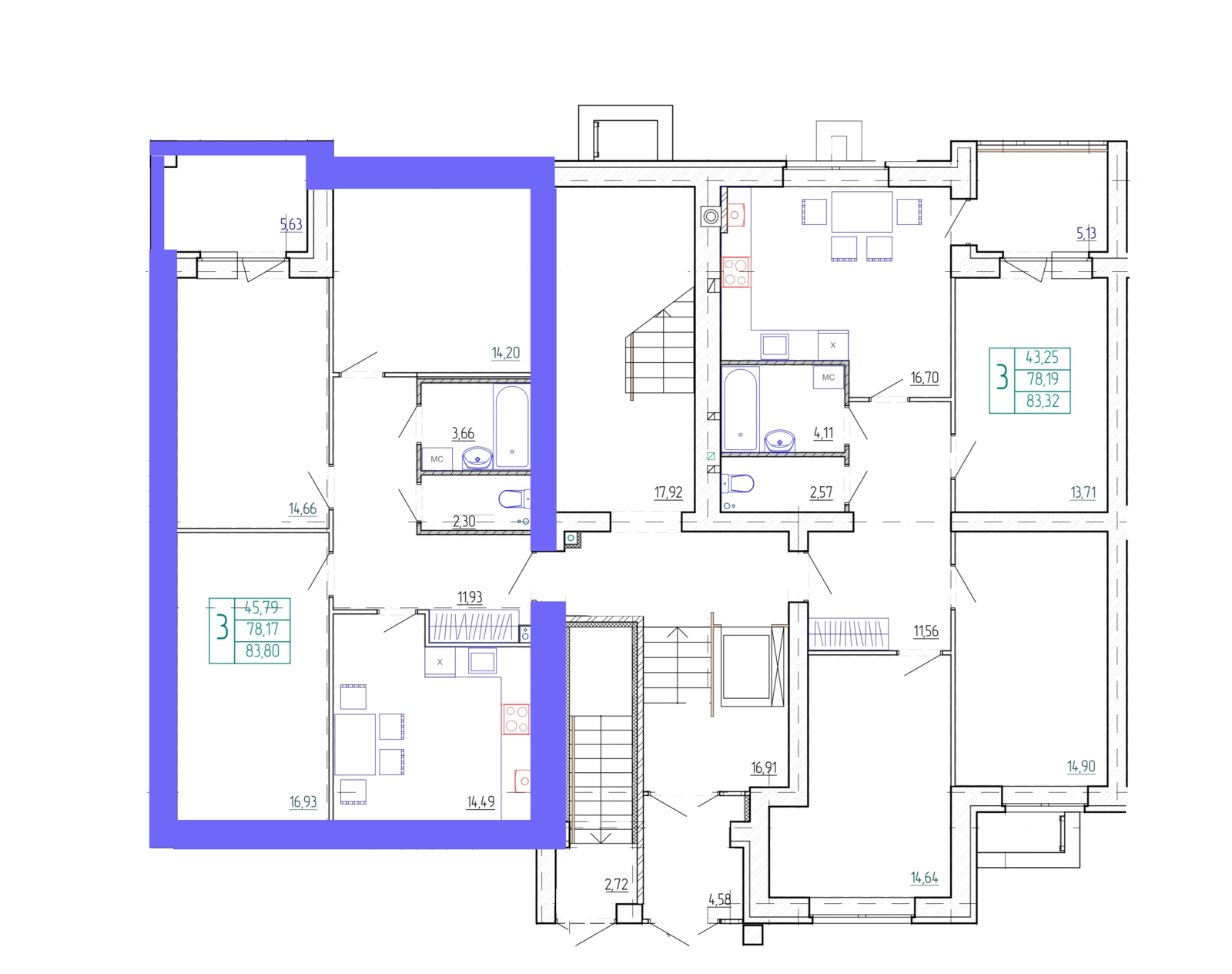
Продается 3-комн. квартира № 1 пл. 83,8 м²
Продается 3-комн. квартира № 1 пл. 83,8 м²
Город
Кострома
Адрес
ЖК "Европейский"
Дом
№ 36
Квартира
№ 1
Комнат
3
Площадь
Общая/Жилая/Кухни
83,8 / 45,79 / 14,49 м²
Этаж
1/3
Дата сдачи
7 961 000
Добавить в избранное
Получить консультацию
по покупке этой квартиры
+7 (4942) 64-11-11
Офис продаж: г. Кострома, ул. Советская д. 21А корпус 3
Распечатать PDF
Отправить на E-mail
Уже посмотрели эту квартиру:
Всего 10,
Сегодня 22
Оставьте заявку на бронирование квартиры в этом доме
С Вами свяжется менеджер для подтверждения бронирования!
Я принимаю
пользовательское соглашение
Ваша квартира в доме
3 этаж
2 этаж
1 этаж
3 этаж
2 этаж
1 этаж
3 этаж
2 этаж
1 этаж
1 подъезд
1 под.
8 кв. свободно
8 кв. своб.
2 подъезд
2 под.
8 кв. свободно
8 кв. своб.
3 подъезд
3 под.
9 кв. свободно
9 кв. своб.
№ 6
2-комн.
66,32/28,19/16,7 м²
7 096 240
№ 7
1-комн.
34,94/13,88/8,94 м²
3 965 690
№ 8
3-комн.
83,8/45,79/14,49 м²
8 044 800
№ 3
2-комн.
66,32/28,19/16,7 м²
7 096 240
№ 4
1-комн.
34,94/13,88/8,94 м²
3 983 160
№ 5
3-комн.
83,8/45,79/14,49 м²
8 044 800
№ 1
Ваша
квартира
№ 2
3-комн.
83,32/43,25/16,7 м²
7 998 720
№ 14
3-комн.
83,3/45,79/14,49 м²
7 996 800
№ 15
1-комн.
34,94/13,88/8,94 м²
3 965 690
№ 16
2-комн.
66,32/28,19/16,7 м²
6 996 760
№ 11
3-комн.
83,3/45,79/14,49 м²
7 996 800
№ 12
1-комн.
34,94/13,88/8,94 м²
3 997 136
№ 13
2-комн.
66,32/28,19/16,7 м²
6 996 760
№ 9
3-комн.
87,42/45,56/16,7 м²
8 130 060
№ 10
3-комн.
83,3/45,79/14,49 м²
7 913 500
№ 23
2-комн.
66,09/28,75/14,89 м²
6 972 495
№ 24
2-комн.
61,14/26,79/14,41 м²
7 031 100
№ 25
3-комн.
83,01/45,79/14,21 м²
7 968 960
№ 20
2-комн.
66,09/28,75/14,89 м²
7 005 540
№ 21
2-комн.
61,14/26,79/14,41 м²
6 664 260
№ 22
3-комн.
83,01/45,79/14,21 м²
8 882 070
№ 17
3-комн.
83,03/45,79/14,21 м²
7 887 850
№ 18
2-комн.
60,96/25,79/14,81 м²
6 583 680
№ 19
1-комн.
37,02/13,39/9,66 м²
4 072 200
№ 6
2-комн., 3 эт.
66,32/28,19/16,7 м²
7 096 240 Р
№ 7
1-комн., 3 эт.
34,94/13,88/8,94 м²
3 965 690 Р
№ 8
3-комн., 3 эт.
83,8/45,79/14,49 м²
8 044 800 Р
№ 3
2-комн., 2 эт.
66,32/28,19/16,7 м²
7 096 240 Р
№ 4
1-комн., 2 эт.
34,94/13,88/8,94 м²
3 983 160 Р
№ 5
3-комн., 2 эт.
83,8/45,79/14,49 м²
8 044 800 Р
№ 1
3-комн., 1 эт.
83,8/45,79/14,49 м²
7 961 000 Р
№ 2
3-комн., 1 эт.
83,32/43,25/16,7 м²
7 998 720 Р
№ 14
3-комн., 3 эт.
83,3/45,79/14,49 м²
7 996 800 Р
№ 15
1-комн., 3 эт.
34,94/13,88/8,94 м²
3 965 690 Р
№ 16
2-комн., 3 эт.
66,32/28,19/16,7 м²
6 996 760 Р
№ 11
3-комн., 2 эт.
83,3/45,79/14,49 м²
7 996 800 Р
№ 12
1-комн., 2 эт.
34,94/13,88/8,94 м²
3 997 136 Р
№ 13
2-комн., 2 эт.
66,32/28,19/16,7 м²
6 996 760 Р
№ 9
3-комн., 1 эт.
87,42/45,56/16,7 м²
8 130 060 Р
№ 10
3-комн., 1 эт.
83,3/45,79/14,49 м²
7 913 500 Р
№ 23
2-комн., 3 эт.
66,09/28,75/14,89 м²
6 972 495 Р
№ 24
2-комн., 3 эт.
61,14/26,79/14,41 м²
7 031 100 Р
№ 25
3-комн., 3 эт.
83,01/45,79/14,21 м²
7 968 960 Р
№ 20
2-комн., 2 эт.
66,09/28,75/14,89 м²
7 005 540 Р
№ 21
2-комн., 2 эт.
61,14/26,79/14,41 м²
6 664 260 Р
№ 22
3-комн., 2 эт.
83,01/45,79/14,21 м²
8 882 070 Р
№ 17
3-комн., 1 эт.
83,03/45,79/14,21 м²
7 887 850 Р
№ 18
2-комн., 1 эт.
60,96/25,79/14,81 м²
6 583 680 Р
№ 19
1-комн., 1 эт.
37,02/13,39/9,66 м²
4 072 200 Р
Свободно квартир: 25
Новый формат недвижимости в лучших европейских традициях.
Проект включает строительство общей площадью более 300 тысяч квадратных метров в экологически чистом районе.
Дома малоэтажной застройки из керамического кирпича, с панорамным остеклением и автономным отоплением, в экологически чистой зоне.
Уникальная возможность жить в развитом современном микрорайоне, ощущая близость к природе и комфорт.
Рассчитайте примерный платеж по ипотеке с калькулятором от ДомКлик
Наши гарантии
Полное бесплатное юридическое сопровождение сделки;
Государственная регистрация договора участия в долевом строительстве без очереди;
Работаем по Федеральному закону №214-Ф3 от 30.12.2004;
Наличие всей необходимой разрешительной документации на каждый объект;
Похожие предложения
3-комн. квартира № 2 пл. 83,32 м²
7 998 720
ЖК "Европейский"
3-комн. квартира № 10 пл. 83,3 м²
7 913 500
ЖК "Европейский"
3-комн. квартира № 23 пл. 80,99 м²
7 775 040
ЖК "Европейский"
3-комн. квартира № 11 пл. 84,85 м²
8 060 750
ЖК "Европейский"
3-комн. квартира № 25 пл. 83,01 м²
7 968 960
ЖК "Европейский"
3-комн. квартира № 11 пл. 83,3 м²
7 996 800
ЖК "Европейский"
3-комн. квартира № 4 пл. 80,44 м²
7 722 240
ЖК "Европейский"
3-комн. квартира № 9 пл. 87,42 м²
8 130 060
ЖК "Европейский"
Ранее Вы просматривали
3-комн. квартира № 1 пл. 83,8 м²
7 961 000
ЖК "Европейский"
Наверх
Вход
Карта объектов
Местоположение
Местоположение
Местоположение
Отложено в избранное
отправить на e-mail
заказать звонок
Отправить сообщение
изменить статус квартиры
Забронировать квартиру
Оставить отзыв
Подписаться
Восстановление пароля
Ипотека
Обмен старой квартиры на новую
Использование государственных сертификатов
Беспроцентная рассрочка
от застройщика
Индивидуальный график оплат
Регистрация
Вы успешно зарегистрированы и авторизованы!
личный кабинет
каталог
3d-тур
Путешествие по Венеции
Вы интересовались данной квартирой
Отправить заявку
Отправить заявку
Советы профессионала
Советы профессионала
Онлайн-трансляция
Квартиры